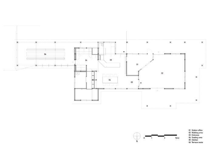
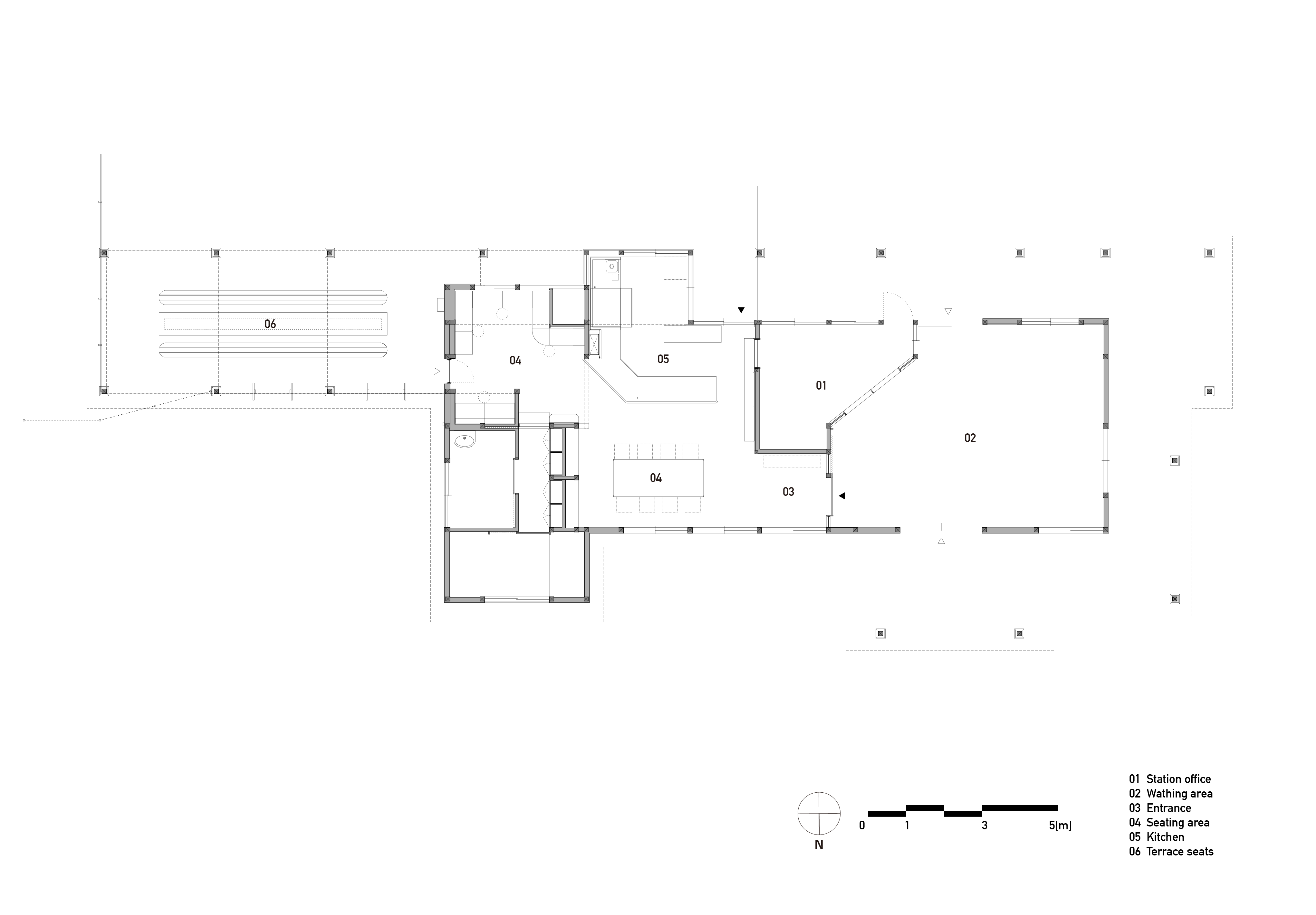
JR久大本線・筑後吉井駅駅舎の一角に計画したコーヒーショップである。
駅員休憩所として使われていた痕跡を参照しながら、昔からそこにあったかのような佇まいを目指した。
detail
process
施主たっての希望で、メインとなるカウンターや半屋外にコンクリートで成形するテーブルの天板などを左官仕上げに。原田左研の原田さんにお願いする。
「半屋外のテーブル天板は凪のように表面が揺らいでいる方が良いね」と原田さんから提案を受けたもの。
concept model
この場所を初めて訪れたとき、まだ駅員さんが使っていた頃のまま、古い時刻表や壁に残されたメモ書きなど、活動の痕跡がそこかしこに残っていた。それらは単なる古びた資料ではなく、この場所が積み重ねてきた時間そのもののようにも感じられた。だからこそ、できるだけそうした「痕跡」をそのままに保ちながら、「新しくコーヒーショップをつくる」というよりも、まるで昔からそこにあったかのような佇まいを目指した。
もともとの天井は杉板で、深いこげ茶へと変色していた。柱や腰壁などは淡いベージュ色で仕上げられている。その素材の質感を受け止めながら、新たに造作する部分も同じ色調で設えている。また、カウンターやソファーテーブルなど、お客様が腰を下ろし、時間を過ごし、対話が生まれる場所は、角を立てず、緩やかなアールを描く形状とし、空間全体が少しだけやわらかく感じられるように配慮している。
室内のカウンターや屋外のロングテーブルは、日田の左官職人・原田進さんによる仕事である。地域の土を用いながら仕上げている。内部のカウンターは、甘木の土と漆喰を混ぜたコテ仕上げとしている。外部のカウンターは、甘木の土と白セメントなどを混ぜ込んだ仕上げとし、立ち上がり部分はざらりとした洗い出し、天板は水面のような微細な揺らぎを感じさせる、やわらかな研ぎ出し仕上げとしている。
[写真クレジット]
スライダー ©OOKI JINGU
1~30 ©rhythmdesign




















